こんにちは、リノベ設計の丸山です。
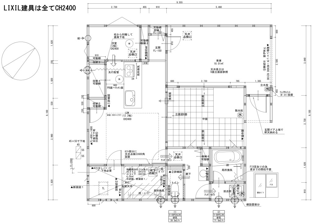
本日は前回ブログにて書きました自邸の間取りを超簡単に説明します。入社して1年半で描いた図面の為結構見にくいです。印刷の設定も知らない時だったので線の太さや色が似たり寄ったりで、要らない線もあったりします…

【1】窓とファサードのこだわり
外周部にほとんど窓がありません。これは前職の社長のお家を見て影響を受けたこともあります。外周部に面している数枚の窓は全て型ガラスやスリガラスとなっていて、カーテンを設けなくても問題ありません。また、中庭に面している窓は全て外部から見えないようになっていて、且つ中庭は南面ではなく北面(北東)に向けて開いているので直射日光が入らず、カーテンやシャッターは不要です。
【2】死角を活かす
予算と土地の都合上中庭は1か所としました。それにより、中庭に面する空間が必然的に絞られます。浴室からとLDKから中庭を眺めるようにする為、死角を利用して部屋を設けました。また、LDKからガレージを眺めたかったので隣接+中庭を通してガレージが見えるように工夫しました。実家の洗面所が暗かったこともあり自邸では明るくしたかったので中庭から光を取込んでいます。
【3】無駄のない空間と動線
この家は車庫を経由した間取りとなっていて、普段は車庫からの出入りメインの為、玄関ドアはサブになっています。また、このガレージは風除室の代わりとなっていることで玄関ホールを削っています。洗面所は廊下と兼用して使うことで無駄のない空間となっています。WICはサンルーム一体とし、リビングを通らない事で部屋が服まみれになりません。収納も楽々です。洗濯機から干す部屋まで距離はありますが全く問題なかったです。むしろ収納までの動線を短くした方がより家事動線が楽になりました。
【4】室内ドアの工夫
WICと洗面の入り口のドアはあえてLDKに向かって開いています。そうすることでドアの表面が壁と一体となり、「ドア」ではなく「壁」として捉えることができ空間がよりスッキリします。建具はLIXILのラフィスという商品を採用しており、ラフィスのコンセプトである「壁、ときどき、建具」を具現化した空間となりました。また、LDKの収納5はDVD収納も兼用しているので、赤外線が飛ぶようにサンワカンパニーのクアドロスリム(ガラス扉)を採用しました。
余談ですが、自邸がKMEWの中部CBウォール施工事例コンテストに受賞しました。KMEWのSOLIDOの施工事例のどこかに載っています☀この歳になって受賞されると誰かに認められた感じがして嬉しいものです…
その他いっぱい書きたいことがあるのですが程々にしておきます…
上記で挙げた内装といつものネコチャン貼っておきます🐈

